株式会社タニケン
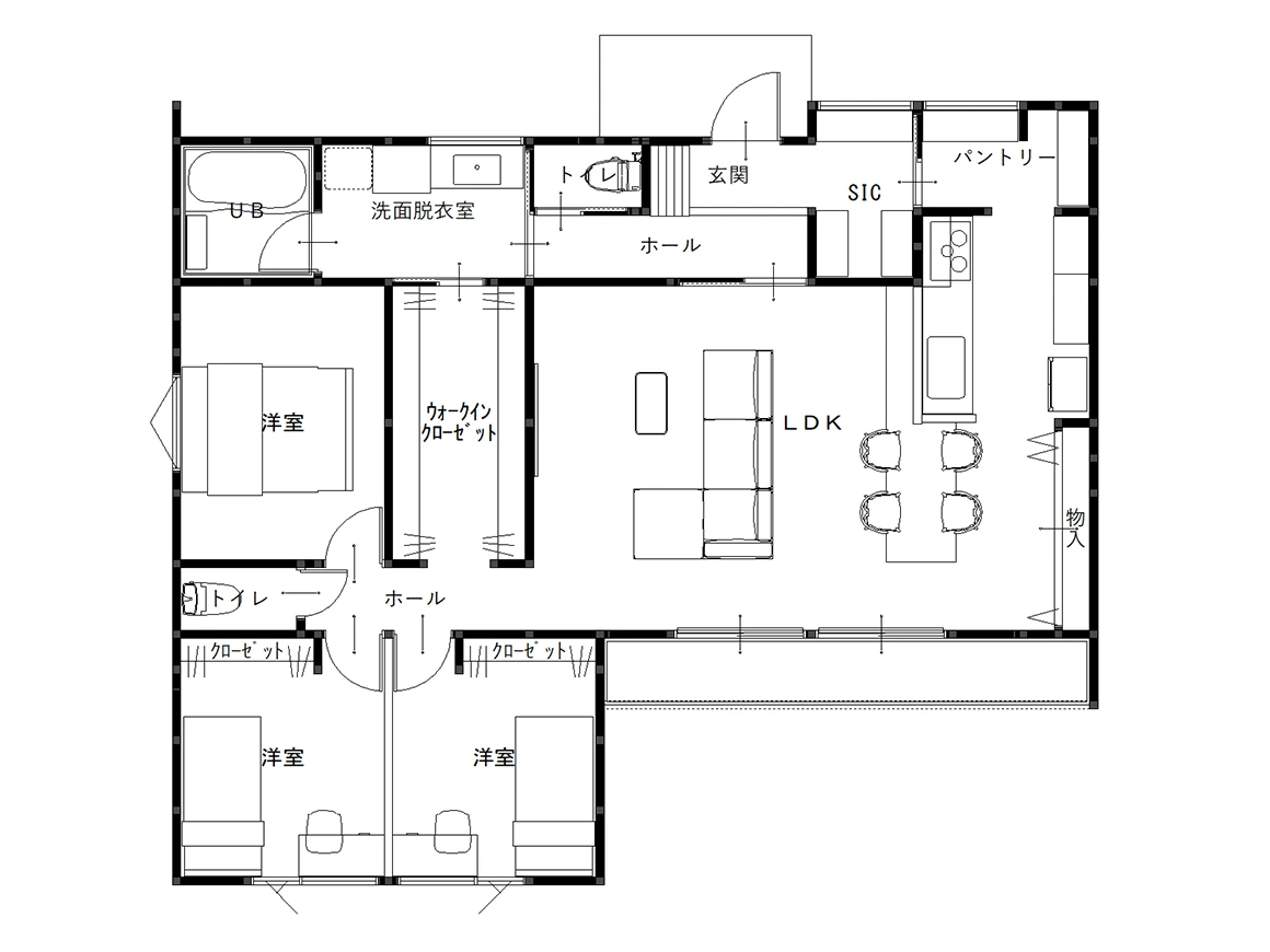
『あったらいいな』と“安心”が詰まった平屋
テクノストラクチャーEX(制震システム「テクノダンパー」)工法を採用し、耐震等級3超の強さを目指した長期優良住宅。
断熱等級6(GX仕様)認定と24時間全熱交換換気「sumika」で暖かさを逃がしません。
今注目の平屋で、回遊動線により暮らしやすさを実現。
GALLERY
ほんとうに良い家を、ほんとうに喜ばれるかたちで。
株式会社タニケンは、建売住宅と注文住宅の両方を手がける高知市の工務店です。
「今の暮らしに合う家がいい」「間取りからこだわりたい」どちらの想いにも寄り添い、
設計士・大工・スタッフ全員で住み心地と安心を大切にした家づくりを行っています。
木と鉄のハイブリッド、テクノストラクチャー工法にも対応しています。

About
| 会社名 | 株式会社タニケン |
| 郵便番号・住所 | 〒781-0015 高知県高知市薊野西町一丁目24-15 |
| 電話番号 | 088-845-8311 |
| 営業時間 | 9:00~18:00(土曜日は9:00~17:00) |
| 定休日 | 日曜・祝祭日・第5土曜日・年末年始・夏季休業 |
| 施工可能エリア | 高知市・南国市・土佐市・香南市・香美市・吾川郡いの町・須崎市 |
| 工法・構造 | 木造軸組工法・テクノストラクチャー工法 |
| 対応仕様 | ・断熱等級6(GX仕様) ・長期優良住宅 ・ZEH ・テクノストラクチャーEX(制震システム「テクノダンパー」) |
| 標準坪単価 | 坪78万円~98万円(税別) |
MAP
モデルハウスVR体験のお申込みもこちら。
























